













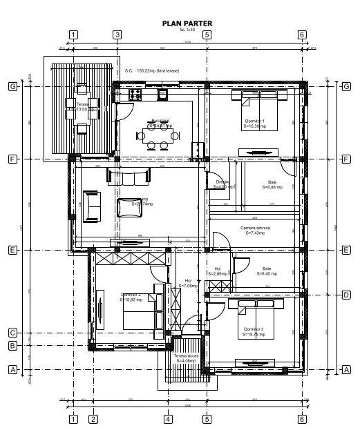
Victory Holding vă propune spre achiziție o casă modernă, construită pe un singur nivel, situată în Balotești, cu o suprafață utilă de 155 mp și teren generos de 500 mp.
Proprietatea dispune de 3 dormitoare spațioase (15 mp fiecare), 2 băi (câte 6 mp), un living luminos de 28 mp, dressing de 4 mp, hol de 7 mp, cameră tehnică de 7,5 mp și două terase exterioare (4 mp și 13,5 mp).
Preț: 248.000 € (TVA inclus) – o ofertă excelentă pentru zona și calitatea construcției.
Victory Holding – partenerul tău de încredere în alegerea unei locuințe de calitate.
Vă așteptăm la vizionare!